...
ڈوبی لینڈ، دبئی میں خوبصورت خاندانی سائز کے ڈپلیکس اپارٹمنٹس
پراپرٹی کی تفصیلات تصدیق شدہ
- حوالہ نمبر97011
- مقصدفروخت کے لیے
- قسمولا
- بیڈ روم8
- باتھ روم7
- بالکنی3
- سائز730 مربع میٹر
- اختتامی تاریخ30-12-2024
- پولدستیاب
قیمت کی فہرست
خصوصیات
انڈور پارکنگ باربی کیو گالف فٹ بال باسکٹ بال والی بال ٹینس ریسٹورنٹ سوئمنگ پول
کھیل کا میدان گیم روم کرکٹ ویلننس کلب مچھلی پکڑنے کا جھیل پیٹنگ فارم گھڑ سواری سماجی سہولتیں تقریبات بازار
فاصلے
شہر کا مرکز: 9کلومیٹر ساحل: 13کلومیٹر ہوائی اڈہ: 31کلومیٹر دوسرا ہوائی اڈہ: 44کلومیٹر شاپنگ سنٹر: 449میٹر مزید معلومات
ڈوبی لینڈ دبئی کے امارات میں پھیلے ہوئے 280 مربع کلومیٹر رقبے پر محیط ایک وسیع اور پھیلی ہوئی رہائشی ترقیاتی منصوبہ ہے۔ بالکل ابتدا سے تعمیر کیا گیا، یہ بہت بڑا کمپلیکس تھیم پارکس، شاپنگ مالز اور گالف کورسز کی بھرمار بھی پیش کرتا ہے، جو اسے دنیا کے پانچ بہترین مقامات میں سے ایک بناتے ہیں جہاں خاندانوں کیلئے تفریح، سیاحت اور فراغت کے مواقع موجود ہیں۔ اس پراپرٹی کا محل وقوع بہترین ہے تاکہ دستیاب متعدد سہولیات سے فائدہ اٹھایا جا سکے۔ گالف کورسز ہر طرف موجود ہیں، جبکہ ٹرمپ انٹرنیشنل گالف کلب صرف 3.1 کلومیٹر دور ہے۔ جبل علی اسکول طالب علموں کو برطانوی نصاب پر مبنی تعلیم فراہم کرتا ہے، اور فارغ وقت میں بچے پالتو فارم جیسی تفریحی جگہوں کا دورہ کر سکتے ہیں۔
سہولیات تک فاصلہ
- شہر تک فاصلہ: 9km
- سمندر تک فاصلہ: 13km
- ہوائی اڈے تک فاصلہ: 31km
- خریداری علاقے تک فاصلہ: 500m
اپارٹمنٹ کی خصوصیات
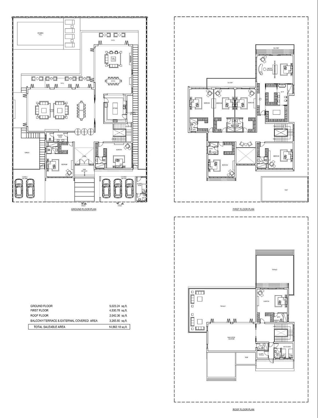
یہ خوبصورتی سے ڈیزائن کیا گیا منصوبہ اپنی طرز اور جسامت دونوں میں دلکش ہے۔ تین منزل کی ترتیب میں آٹھ بیڈ رومز اور سات باتھ رومز کے ساتھ، یہ اپارٹمنٹس یہاں تک کہ سب سے بڑے خاندانوں کے لیے بھی کشادہ رہائشی انتظام فراہم کرتی ہیں۔ عیش و آرام اور انداز اعلیٰ معیار کے مواد کے استعمال سے حاصل کیے گئے شاندار اندرونی ڈیزائن کی نمائندگی کرتے ہیں۔ سہولیات میں گیراج پارکنگ شامل ہے، اور کھیلوں کی سہولیات بھی دستیاب ہیں، جیسے کہ ٹینس اور والی بال، تاکہ پورا خاندان تفریح حاصل کر سکے۔
فلور پلانز
نہیں جانتے کہ کہاں سے شروع کریں؟
ہمارا ماہر آپ کو رئیل اسٹیٹ کے انتخاب میں مدد کے لیے آپ سے رابطہ کرے گا۔



