یہ پراپرٹی فروخت ہو چکی ہے۔
بودروم، مغلا میں واقع اسٹائلش اور پرکشش اپارٹمنٹس
پراپرٹی کی تفصیلات تصدیق شدہ
- حوالہ نمبر48060
- مقصدفروخت کے لیے
- قسماپارٹمنٹ
- بیڈ روم4
- باتھ روم3
- بالکنی2
- سائز1 مربع میٹر
- اختتامی تاریخ07-08-2023
- پولدستیاب
خصوصیات
انڈور پارکنگ ذاتی پارکنگ سمارٹ ہوم جنریٹر سوئمنگ پول کے کنارے بار فرش کی حرارت کیمرہ سوئمنگ پول جِم
کیفے
فاصلے
شہر کا مرکز: 27کلومیٹر ساحل: 20میٹر ہوائی اڈہ: 52کلومیٹر شاپنگ سنٹر: 300میٹر مزید معلومات
بودروم، جو ترکی کے جنوب مغربی حصے کے مغلا صوبے میں واقع ہے، ایک دلکش منزل ہے جو بھرپور تاریخ، حیرت انگیز قدرتی خوبصورتی اور متحرک جدیدیت کو باآسانی یکجا کرتی ہے۔ اسے اکثر ترکی کا "سینٹ ٹروپیز" کہا جاتا ہے کیونکہ یہ ایک شاندار اور پرتعیش ساحلی ریزورٹ ٹاؤن کے طور پر جانی جاتی ہے۔ یہ علاقہ اپنی سہولت کی وجہ سے مقبول ہے، جہاں دکانیں اور ریستوران قریب واقع ہیں، جبکہ آسمان جیلا نیلا سمندر صرف 20 میٹر دور ہے۔ شہر کے گرم موسم کا مطلب ہے کہ رہائشی پانی کی قربت کی قدر کریں گے۔ پورے شہر میں، رہائشی تاریخی پہلو کو دریافت کرنے کا بھی موقع پاتے ہیں، جیسے قدیم شہر پیڈاسا یا مشہور بودروم قلعہ کا دورہ کر کے.
سہولیات تک فاصلہ
- شہر تک فاصلہ: 26.5 کلومیٹر
- ساحل تک فاصلہ: 20 میٹر
- ہوائی اڈے تک فاصلہ: 51.5 کلومیٹر
- شاپنگ ایریا تک فاصلہ: 300 میٹر
اپارٹمنٹ کی خصوصیات
یہ تین منزلہ بلاکس 2023 میں مکمل ہوئے اور چار بیڈ رومز والے ڈپلیکس فراہم کرتے ہیں۔ تین باتھ رومز اور دو بالکونیوں کی شمولیت، جو کشادہ ڈیزائن کا حامل ہیں، کا مطلب ہے کہ خاندان والوں کے پاس تمام ضروری جگہ موجود ہوگی۔ یہ گھر نہ صرف ڈیزائن میں بلکہ سمارٹ ہوم سسٹم اور فرش کی حرارتی سہولت کی وجہ سے بھی جدید ہیں، جسے ٹھنڈی سردیوں میں سب سے زیادہ سراہا جائے گا۔ عمارت کے احاطے میں ایک جم، پول اور پول سائیڈ بار بھی موجود ہیں۔ تاہم، اصل کشش وہ شاندار ساحلی علاقہ ہے جس تک رہائشی رسائی رکھتے ہیں۔ لہروں کی مدھم آواز کے ساتھ گھنٹوں کا آرام گزارا جا سکتا ہے۔
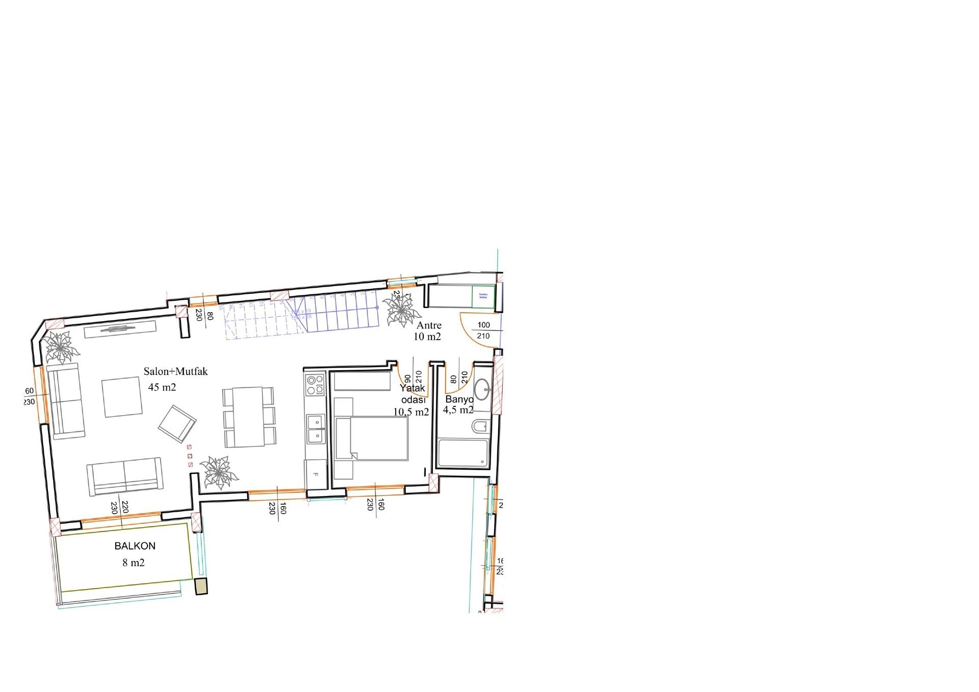
فلور پلانز
نہیں جانتے کہ کہاں سے شروع کریں؟
ہمارا ماہر آپ کو رئیل اسٹیٹ کے انتخاب میں مدد کے لیے آپ سے رابطہ کرے گا۔



