€226,000
1-Makuuhuoneen Huoneisto Myynnissä Al Furjanissa, Dubain
Kiinteistön tiedot Vahvistettu
- Viitenumero97295
- Tarkoitusmyytävänä
- Tyyppiasunto
- Makuuhuone1
- detail.bathroom2
- Parveke2
- Koko69 m²
- End Date30-12-2025
Ominaisuudet
Turvallisuus kuntosali Leikkipaikka Lenkkeily- ja kävelyrata
Etäisyydet
Kaupungin keskusta: 9 km Ranta: 4 km Lentokenttä: 18 km Toinen lentokenttä: 36 km Ostoskeskus: 1 km Lisätietoja
Modernit 1-Makuuhuoneen Huoneistot Al Furjanissa, Dubain
Ensiluokkainen Sijainti Al Furjanissa
Sijaitsee Al Furjanin sydämessä, Dubain, tämä uusi asuinkehitys tarjoaa huipputason kaupunkiasumista. Strategisesti metrolinjan varrella, se takaa sujuvan yhteyden merkittäviin liiketoimintakeskuksiin kuten Media City, Internet City ja Expo Dubai. Kehitys tarjoaa myös helpon pääsyn suosittuihin ostospaikkoihin, mukaan lukien Ibn Battuta Mall ja Dubai Marina Mall, sekä erinomaisiin ruokailu- ja vapaa-ajan mahdollisuuksiin lähistöllä.
Tyylikkäät Huoneistot Moderniin Elämään
Huolellisesti Suunnitellut Asunnot
Hanke sisältää studiota ja 1-makuuhuoneen huoneistoja, jokainen huolellisesti suunniteltu vastaamaan modernin elämäntavan tarpeita:
- Studiosviitit: Kompakti mutta toimiva pohjaratkaisu, laadukkailla viimeistelyillä.
- 1-Makuuhuoneen Huoneistot: Tilavat ja tyylikkäät sisätilat, suunniteltu mukavuutta ja tyyliä ajatellen.
- Nykyarkkitehtuuri: Tasapainoinen yhdistelmä tyylikästä, modernia muotoilua ja toimivia asuintiloja.
Vapaaajan mahdollisuudet Vibrant Elämäntyyliin
Premium-Ominaisuudet
Asukkaat voivat nauttia monista mukautetusta elämäntavasta, jotka on suunniteltu parantamaan heidän elämänlaatua:
- Infinity-Uima-allas: Rentoudu ja virkisty upeista näkymistä.
- Kuntosali: Huipputason kuntokeskus terveyden ylläpitämiseen.
- Maisemoidut Kävelytiet: Rauhalliset viheralueet ja rauhallinen ympäristö.
- Lasten Leikkialue: Turvallinen ja innostava tila lapsille.
- Ulkoilma-Istuinalueet: Erinomainen rentoutumiseen ystävien ja perheen kanssa.
- Ravintolat: Kätevät vaihtoehdot erinomaisille ruokailuelämyksille.
- Vähittäiskaupat: Tärkeitä ostos- ja elämäntapapaikkoja yhteisössä.
Turvallisuus ja Suojelemisuus
Kehitys on varustettu 24/7 turvapalvelulla ja kehittyneillä valvontajärjestelmillä, taaten mielenrauhan asukkaille.
Yhteydet ja Lähistön nähtävyydet
Sen ensiluokkaisen sijainnin ansiosta tämä kehitys tarjoaa vertaansa vailla olevaa yhteyksien ja kätevyyden:
- Metroliikenne: Helppo pääsy Dubai Metroon vaivattomiin kulkuaikoihin.
- Tärkeät Moottoritiet: Läheisyys Sheikh Zayed Roadille ja muille pääreiteille.
- Liiketoimintakeskukset: Nopea pääsy Media Cityyn, Internet Cityyn ja muihin kaupallisiin keskuksiin.
- Ostospaikat: Ibn Battuta Mall, Dubai Marina Mall ja muut nähtävyydet vain minuutin päässä.
Joustavat Maksusuunnitelmat
Hanke tarjoaa houkuttelevan ja joustavan maksusuunnitelman, joka tekee ostostasi saumattoman:
- 10% Ensitalletus: Varmista yksikkösi varauspäivänä.
- 40% Rakennusaikana: Rakennuksen eri vaiheiden aikana jaettavat erät.
- 50% Luovutuksessa: Jäljellä oleva maksu 100% valmistumisen myötä.
Miksi Valita Nämä Huoneistot?
Tämä kehitys erottuu erinomaisena valintana sekä asunnon ostajille että sijoittajille:
- Moderni Suunnittelu: Tyylikkäät sisätilat ja arkkitehtuuri.
- Yhteisöilmapiiri: Elävöittävä ympäristö virkistys- ja vapaa-ajan tiloineen.
- Käytännöllisyys: Läheisyys liiketoimintakeskuksiin, ostospaikkoihin ja keskeisiin maamerkkeihin.
- Sijoituspotentiaali: Korkeat vuokratuotot ja kasvava kiinteistön arvo Al Furjanissa.
Koe Kaupunkiasuminen
Nämä studio- ja 1-makuuhuoneen huoneistot Al Furjanissa tarjoavat ainutlaatuisen mahdollisuuden kokea modernia kaupunkielämää parhaimmillaan. Täydellinen yhdistelmä mukavuutta, tyyliä ja kodikkuutta, tämä kehitys on ihanteellinen valinta ammattilaisille, perheille ja sijoittajille.
Ota meihin yhteyttä tänään saadaksesi lisätietoja saatavilla olevista yksiköistä, hinnoista ja maksusuunnitelmista. Varmista unelmakotisi Dubain sydämessä.
Hinnasto
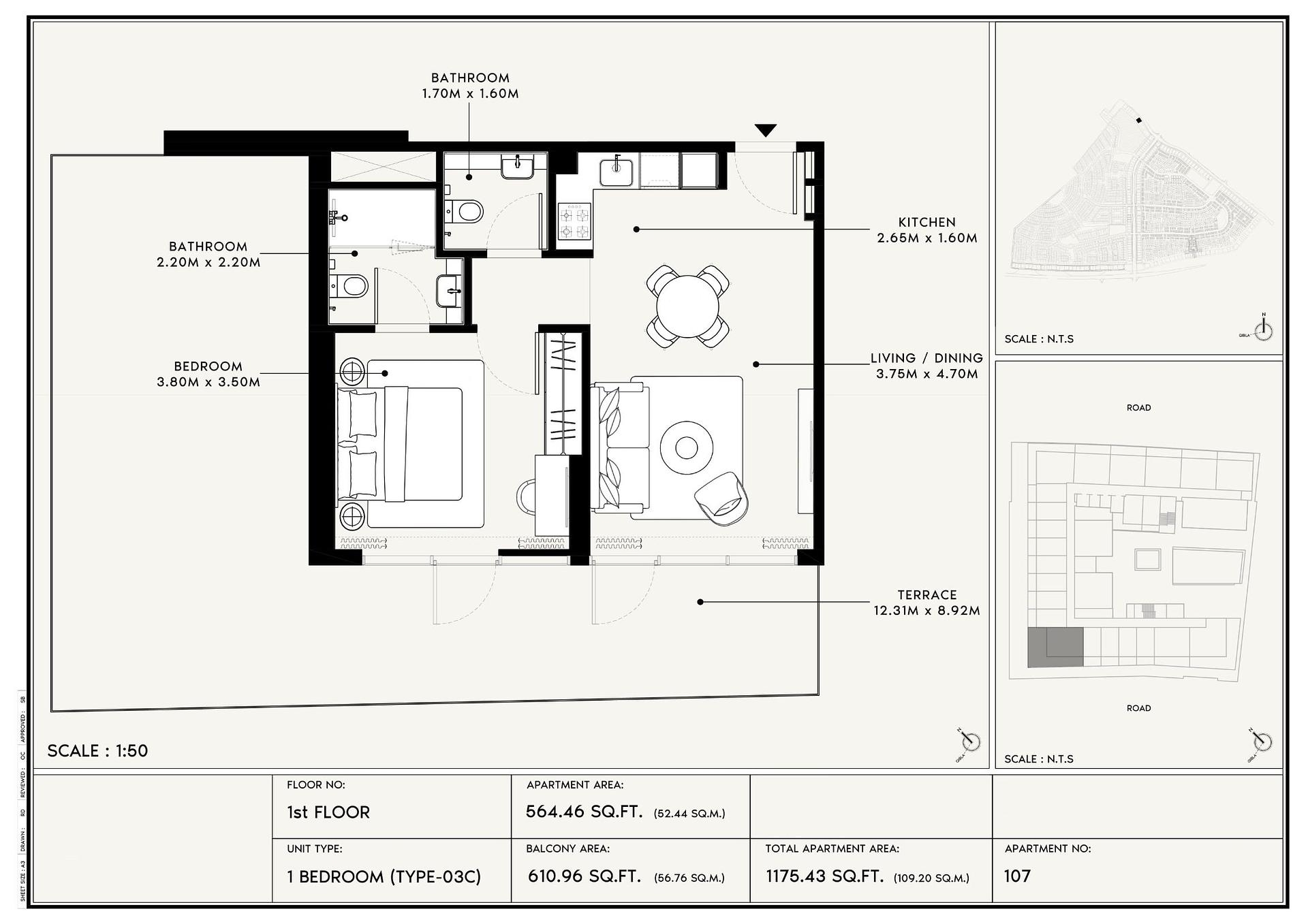
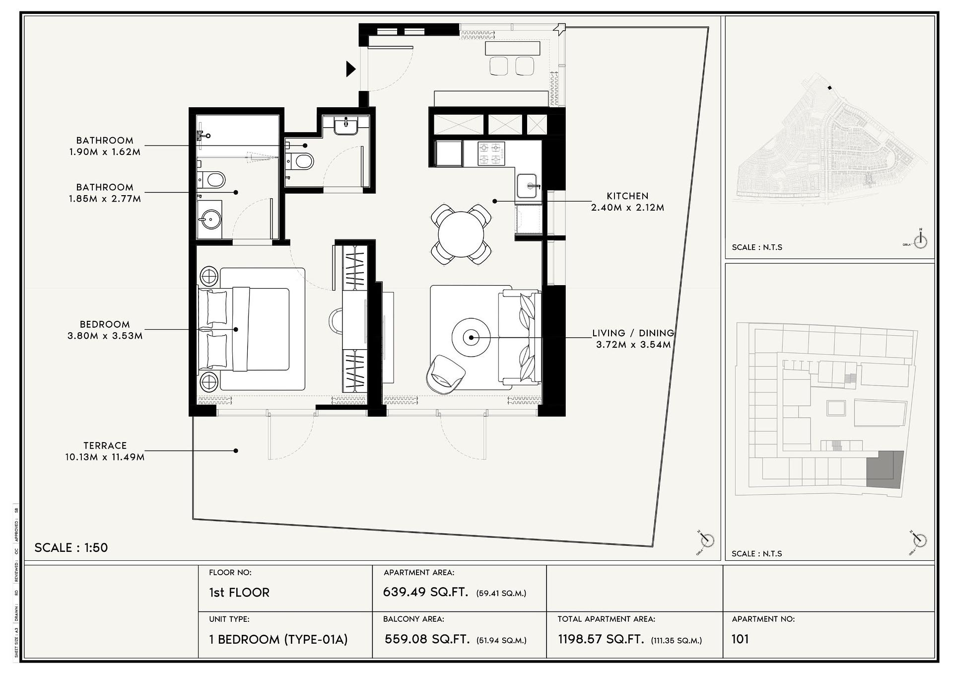
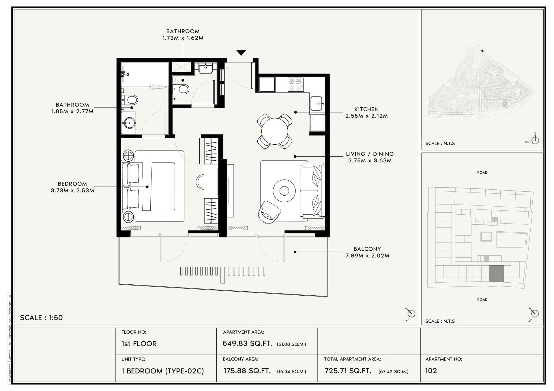
Pohjapiirrokset
Etkö tiedä mistä aloittaa?
Asiantuntijamme ottaa sinuun yhteyttä auttaakseen kiinteistön valinnassa.



