...
Stunning family-sized duplex apartments in Dubailand, Dubai
Property Details Verified
- Ref No97011
- PurposeFor Sale
- TypeVilla
- Bedroom8
- Bathroom7
- Balcony3
- Size730 m²
- End Date30-12-2024
- PoolAvailable
Price List
Features
indoor parking Barbecue Golf Football Basketball Volleyball Tennis Restaurant Pool
Playground Game Room Cricket Wellness Club Fishing Lake Petting Farm Horse riding Social Facilities Events Market
Distances
City Center: 9km Beach: 13km Airport: 31km Second Airport: 44km Shopping Center: 449m More Info
Dubailand is a massive and sprawling residential development covering an area of 280 sq. km in the emirates of Dubai. Totally built from scratch, this gigantic complex also offers theme parks, shopping malls, and an abundance of golf courses, all geared towards making it one of the top five destinations in the world for family entertainment, tourism, and leisure. The property is ideally located to benefit from the many facilities available. Golf courses are all around, with Trump International Golf Club just 3.1km away. Jebel Ali school offers students a British curriculum-based education, and during their free time, children can visit attractions such as the Pet Farm.
Distance to amenities
- Distance to the city: 9km
- Distance to the beach: 13km
- Distance to the airport: 31km
- Distance to shopping area: 500m
Apartment Features
This beautifully designed project is stunning both in its style and size. With eight bedrooms and seven bathrooms over the three-floor layout, the apartments provide spacious living arrangements for even the largest of families. Luxury and style epitomise the elegant interiors achieved by the use of high-quality materials. Facilities include garage parking, and there are sports facilities from tennis to volleyball to keep all the family entertained.
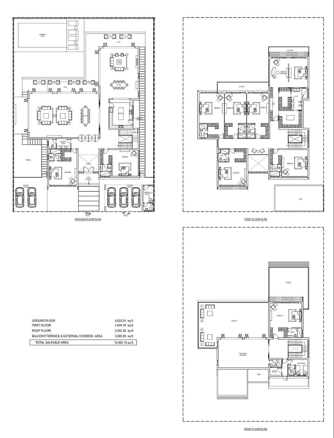
Floor Plans
Don't know where to start?
Our expert will contact you to assist you with real estate selection.



