...
Meerblick-Apartment, Erstaunliche Investition im Küstenparadies
Details zur Immobilie Verifiziert
- Ref.-Nr.RGGV13003A
- ZweckZu verkaufen
- TypWohnung
- Schlafzimmer1
- Badezimmer1
- Balkon1
- Größe40 m²
- Enddatum01-06-2027
- PoolVerfügbar
- MeerblickVerfügbar
Preisliste
Merkmale
Kamera Café Lobby Generator Freiluftkino Sicherheit Fitnessstudio Meerblick Aufzug
Naturansicht Dampfraum Türkisches Bad Hallenbad Strand Grill Restaurant Ruheraum Wasserrutsche Massageraum Klimaanlage Tiefgarage Spa Kino Sauna Spielplatz Schwimmbad Markt Parkplatz im Freien Soziale Einrichtungen Kinderspielbereich
Entfernungen
Stadtzentrum: 10km Strand: 1km Flughafen: 78km Einkaufszentrum: 100m Weitere Informationen
Über das Projekt
Das Coastal Heaven liegt an der Westküste Nordzyperns in der Gegend von Gaziveren und bietet erschwingliche Unterkünfte direkt am Strand mit spektakulärem Blick auf das Mittelmeer. Das Projekt wird von der berühmten türkischen Baufirma Fenercioglu entwickelt. Das Projekt bietet eine große Auswahl an luxuriösen Annehmlichkeiten und lädt Sie ein, den perfekten Inseltraum direkt zu Hause zu leben!
Außenausstattung:
- Privatstrand
- Hafen- und Strandbar
- Aquapark für Kinder und Erwachsene
- Whirlpool
- Open-Air-Kino
- Parkplatz für Autos, Fahrräder und Roller
- Ladestationen für Elektrofahrzeuge
Innenausstattung
- Supermarkt
- Restaurant & Café
- Innenparkplatz
- Kino
- Fitnessstudio
- Spa (Sauna, Massagesalon, Dampfbad)
- Outlet-Einkaufszentrum
- Büro der Verwaltungsgesellschaft
- Autovermietung
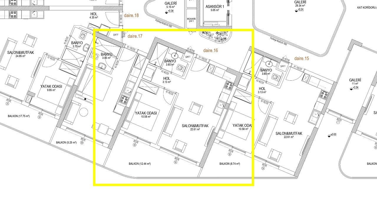
Verfügbare Einheiten
Im Rahmen dieses Projekts stehen drei wundervolle Einheiten zur Verfügung, alle mit ähnlichen Grundrissen wie 40-Quadratmeter-Apartments mit einem Schlafzimmer und geräumigen 12-Quadratmeter-Balkonen in Block 5. Die erste Wohnung befindet sich im Erdgeschoss und ist nach Nordosten zur Halbinsel Dipkarpaz ausgerichtet. Die anderen beiden befinden sich im 1. Stock und sind beide nach Süden in Richtung der Stadt Famagusta ausgerichtet
Grundrisse
Wissen Sie nicht, wo Sie anfangen sollen?
Unser Experte wird Sie kontaktieren, um Ihnen bei der Auswahl einer Immobilie zu helfen.



