...
अलान्या ओबा, 1-2 बेडरूम, तुर्की में बिकने के लिए स्विमिंग पूल के साथ अपार्टमेंट
संपत्ति का विवरण सत्यापित
- संदर्भ संख्या2201
- उद्देश्यबेचने के लिए
- प्रकारअपार्टमेंट
- बेडरूम1-2
- बाथरूम1-2
- बालकनी1-2
- आकार48-100 m²
- समाप्ति तिथि28-02-2025
- detail.pooldetail.available
मूल्य सूची
विशेषताएं
सॉना बारबेक्यू लिफ्ट स्विमिंग पूल बाहरी पार्किंग जिम खेल का मैदान
दूरियां
शहर केंद्र: 7किमी समुद्र तट: 2किमी हवाई अड्डा: 120किमी शॉपिंग सेंटर: 50मी अधिक जानकारी
यह अपार्टमेंट कॉम्प्लेक्स अलान्या के ऊपरी ओबा इलाके में स्थित है, जो समुद्र तट क्षेत्र की तुलना में अधिक शांत है। यहाँ रहना निवासियों को स्वच्छ हवा, मनमोहक पहाड़ी दृश्यों और शांति प्रदान करता है। इस इलाके में कई प्रतिष्ठित और विशिष्ट कॉम्प्लेक्स विकसित किए जा रहे हैं, जिससे पोस्टकोड का आकर्षण चुनिंदा ग्राहकों की ओर बढ़ता है। हालांकि, यह ओबा के केंद्रीय जिले से पैदल दूरी पर है, जहाँ की परिवहन व्यवस्था और बुनियादी ढांचा अच्छी तरह से विकसित है। यहाँ कई दुकानें, बार, रेस्तरां, केंद्रीय सरकारी अस्पताल, विश्वविद्यालय, बैंक, एटीएम, फार्मेसियाँ और बस स्टॉप मौजूद हैं.
सुविधाओं तक दूरी
- केंद्र तक की दूरी: 6.6 किमी
- समुद्र तट तक की दूरी: 2.2 किमी
- अंताल्या हवाई अड्डे तक की दूरी: 120 किमी
- गाज़ीपासा हवाई अड्डे तक की दूरी: 35 किमी
- दुकानों तक की दूरी: 50 मीटर
अलान्या में उच्च गुणवत्ता वाले अपार्टमेंट्स की विशेषताएँ
यह आवासीय कॉम्प्लेक्स 2,500 वर्ग मीटर के भूखंड पर निर्मित है और एकल 5-मंजिला ब्लॉक से बना है, जिसमें विभिन्न प्रकार के अपार्टमेंट शामिल हैं: 1+1 और 2+1 फ्लैट, साथ ही 2+1 और 3+1 पेंटहाउस अपार्टमेंट्स। पैनोरमिक फर्श से छत तक की खिड़कियाँ और टैरेस पहाड़ों और समुद्र के शानदार दृश्यों का आनंद प्रदान करती हैं। पूरे कॉम्प्लेक्स का मैदान सजावटी और विदेशी पौधों से सजाया गया है। इसमें एक बाहरी स्विमिंग पूल, बाहरी पार्किंग, सौना, फिटनेस सेंटर, बच्चों के लिए इनडोर और बाहरी मनोरंजन सुविधाएँ, बीबीक्यू एरिया और 24 घंटे सुरक्षा शामिल है।
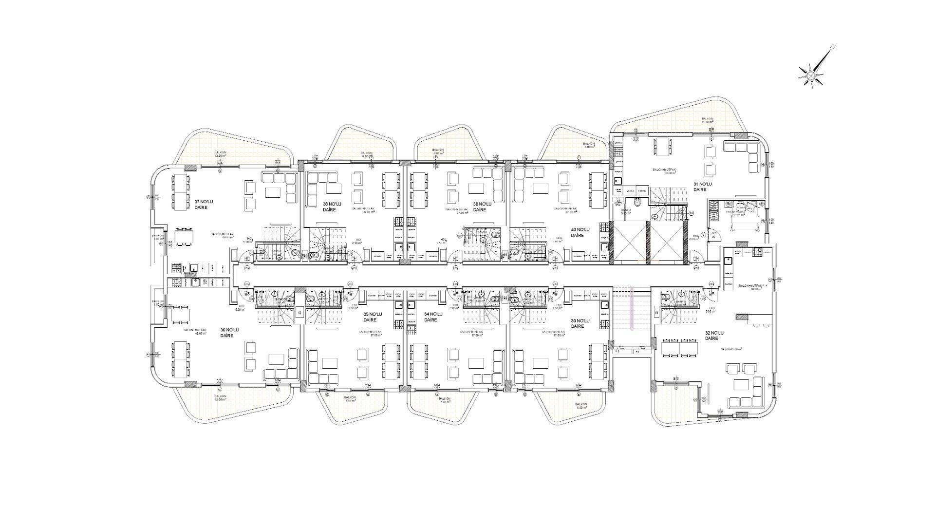
फ्लोर प्लान
नहीं जानते कहां से शुरू करें?
हमारा विशेषज्ञ आपको रियल एस्टेट चयन में सहायता करने के लिए आपसे संपर्क करेगा।



