הנכס הזה נמכר.
וילות סקי בחוף הים באזור המפואר פאלם ג'ומיירה, דובאי
פרטי הנכס מאומת
- מס' סימוכין97111
- מטרהלמכירה
- סוגוילה
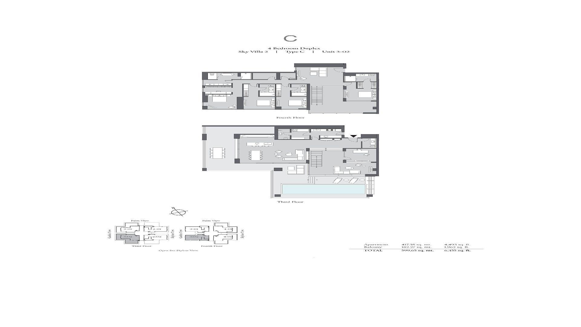
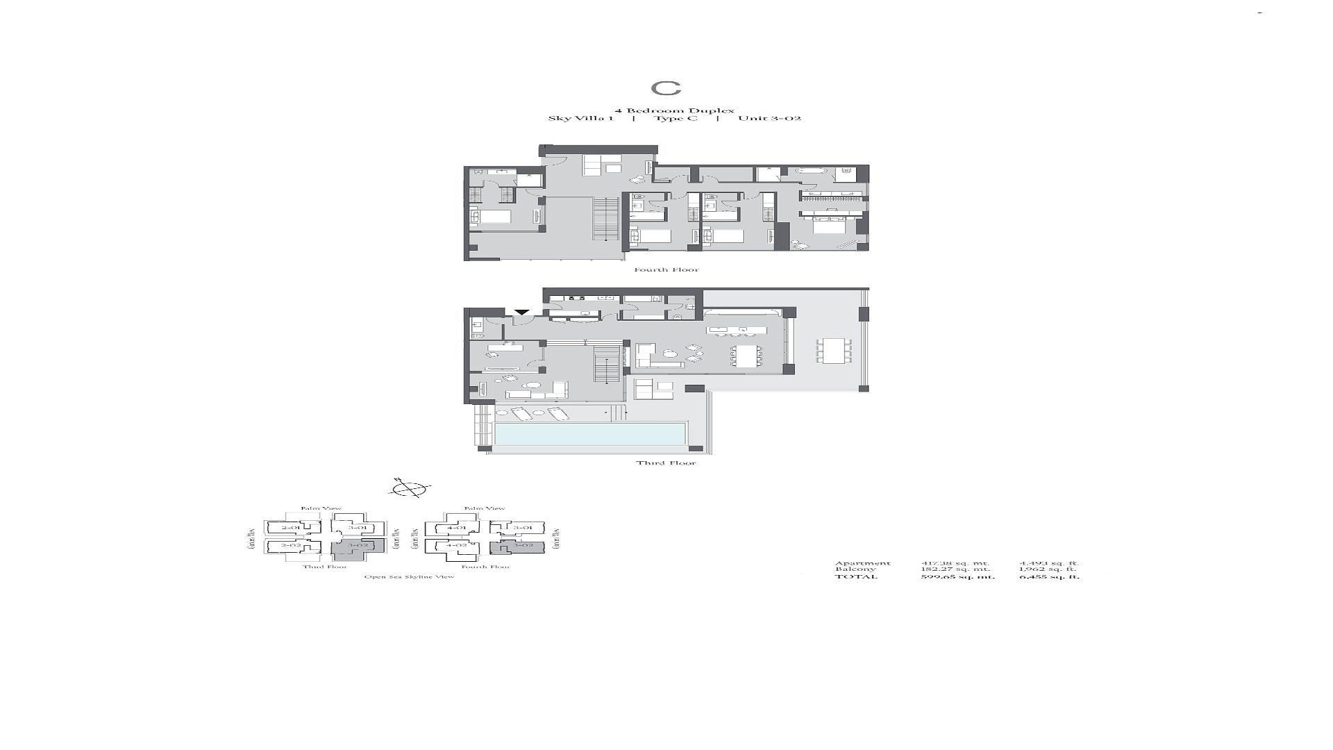
- חדר שינה3-4
- חדר אמבטיה3-4
- מרפסת4
- גודל576-600 מ"ר
- תאריך סיום30-12-2024
מאפיינים
גן סאונה חדר אדים חדר עיסוי חדר ישיבות בריכה בריכה מבוקרת טמפרטורה חדר כושר חדר משחקים
לובי מועדון בריאות
מרחקים
מרכז העיר: 10 ק"מ חוף: 50 מ' שדה תעופה: 36 ק"מ שדה תעופה שני: 37 ק"מ קניון: 300 מ' מידע נוסף
הקומפלקס בחוף הים ממוקם באזור המפואר דובאי, פאלם ג'ומיירה. פאלם ג'ומיירה היא האי המלאכותי הגדול והיפה ביותר בעולם. הוא מהווה מוקד תשומת לב, ומכיל מגוון של וילות, טאון האוסים, דירות, ומלונות יוקרה. אחת מהקהילות המבוקשות ביותר בדובאי מציעה שלל אפשרויות בידור, שנעות מאוכל וחיי לילה ועד פעילויות שמתאימות למשפחות. אזור זה מחובר היטב לשאר דובאי והוא במרחק קצר של נסיעה משייח' זאיד רוד.
מרחק למתקנים
- מרחק למרכז: 10 ק"מ
- מרחק לחוף: 50 מ'
- מרחק לשדות תעופה: 36 ק"מ/37 ק"מ
- מרחק לחנויות: 300 מ'
תכונות של וילות סקי בחוף הים בדובאי
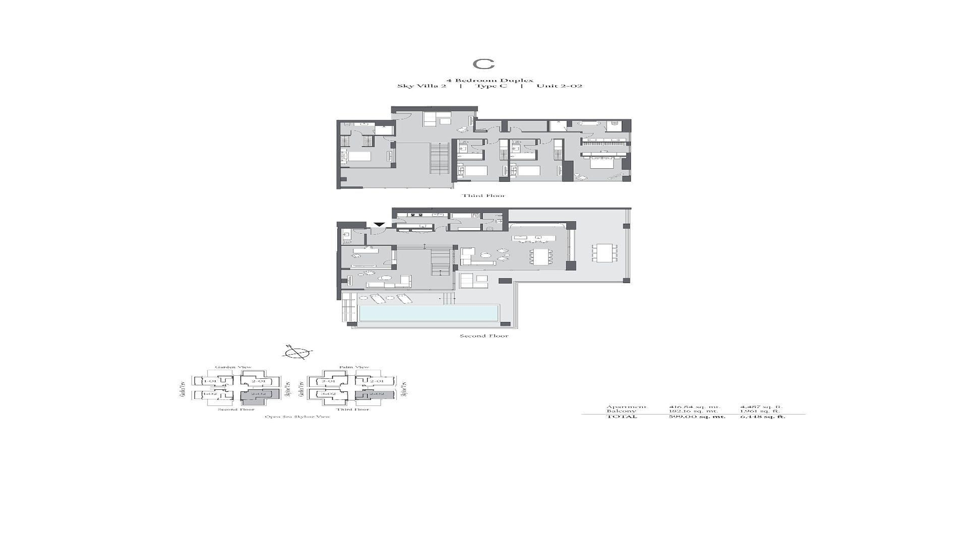
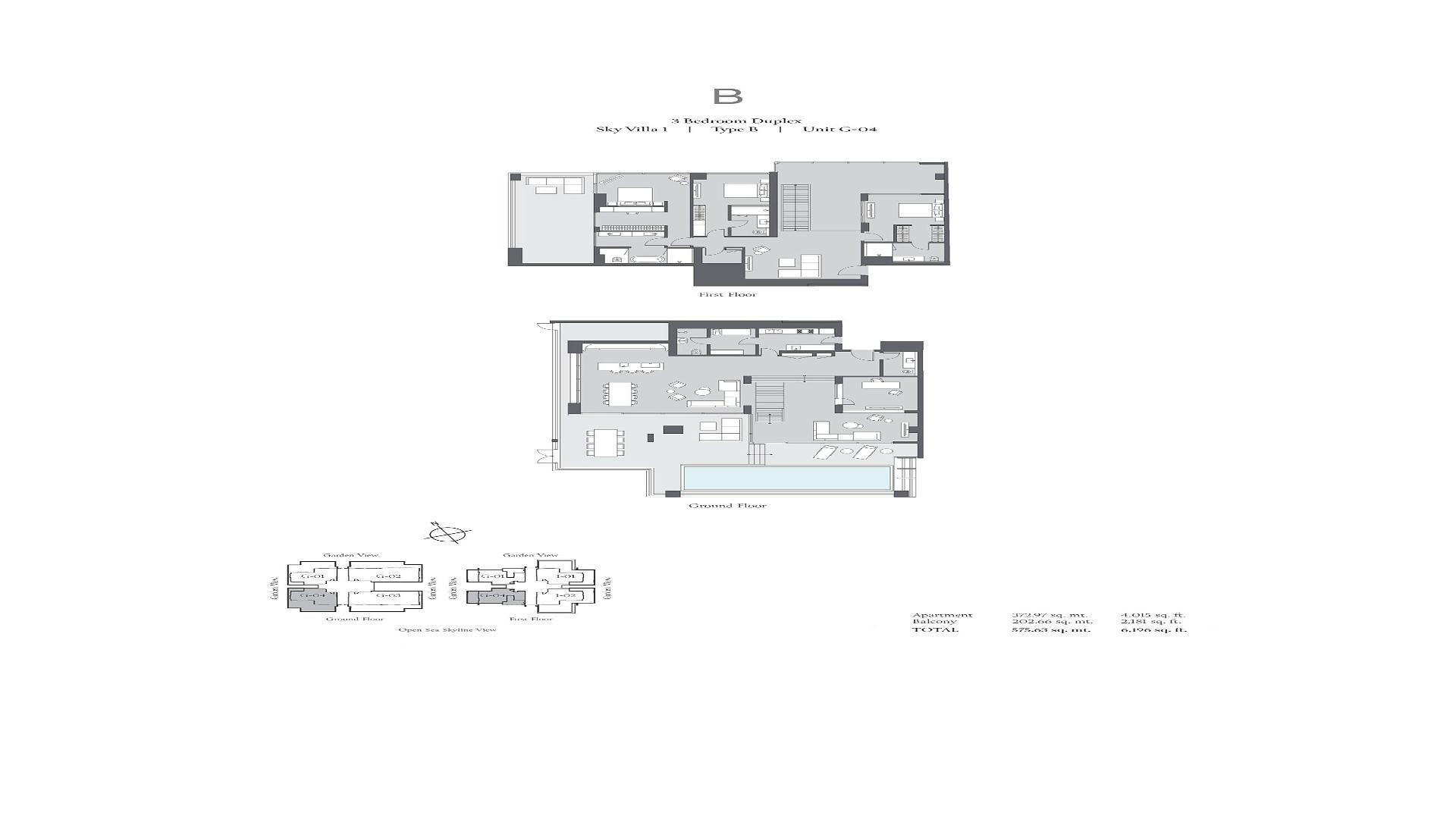
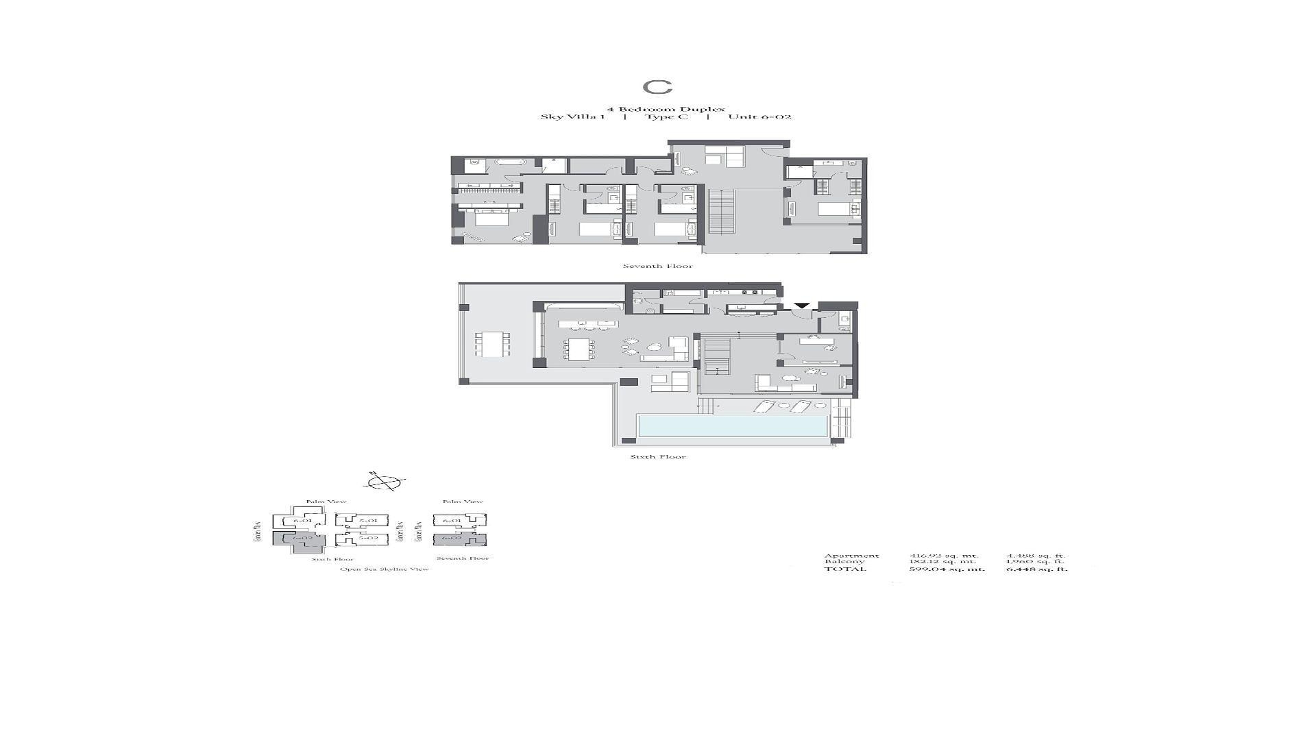
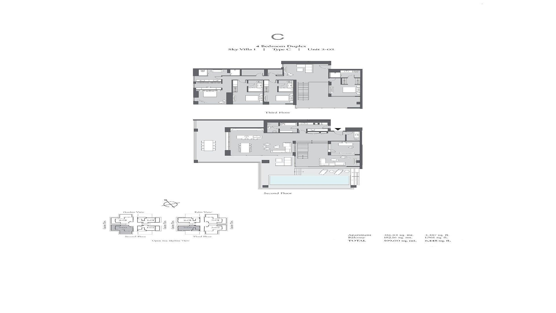
הפרויקט נבנה על שטח כולל של 75,000 מ"ר ומכיל 32 וילות סקי: אופציות דופלקס של 3 חדרי שינה, דופלקס של 4 חדרי שינה ודירה עם 3 חדרי שינה. יש בריכות פרטיות במרפסות בכל יחידה.
וילות סקי מעוצבות ומקוריות שואבות השראה מהמקורות ההיסטוריים של המזרח התיכון, ומאחדות עם האמנות והעיצוב המודרניים. הדיירים בוילות יתלהבו מהנוף של 360 מעלות על פאלם ג'ומיירה, כמו גם מהנוף של המפרץ הערבי וקו השמיים של דובאי.
לדיירים יש גישה מלאה לשירותי המלון, בנוסף לאזורים ירוקים רחבים ומטופחים. בלב הפרויקט הזה נמצא מועדון חברתי ובריאות בגודל של 5,574 מ"ר עם קליניקה ללונגרי, לונג IV, חדר ביוהאקינג, בריכת מסאז' מעגלית, מגרש סקווש, אזורי משרד, וספא בהשראת שוניות אלמוגים בעלות טקסטורה מהים.
תוכניות קומה
לא יודע מאיפה להתחיל?
המומחה שלנו יצור איתך קשר כדי לסייע לך בבחירת הנדל"ן.



