...
דירותOutstanding במיקום בדמאק הילס, דובאי
פרטי הנכס מאומת
- מס' סימוכין97013
- מטרהלמכירה
- סוגוילה
- חדר שינה6
- חדר אמבטיה7
- מרפסת6
- גודל1069 מ"ר
- תאריך סיום29-04-2024
- בריכהזמין
מחירון
מאפיינים
חניה מקורה סאונה חמאם טורקי ג'קוזי מנגל גולף כדורגל כדורסל כדורעף
טניס בריכה חדר כושר מגרש משחקים קולנוע מתקנים חברתיים
מרחקים
מרכז העיר: 8 ק"מ חוף: 13 ק"מ שדה תעופה: 32 ק"מ שדה תעופה שני: 41 ק"מ קניון: 499 מ' מידע נוסף
דמאק הילס הוא אזור ידוע ומבוקש מאוד בדובאי. מתוך בתים מפוארים ואלגנטיים ועד אזורים ירוקים פתוחים, מתקני ספורט, אזורי קנייה ואופציות בידור, הוא מספק הכל לתושביו. עם אווירת קהילה מקבלת פנים, זהו מקום מאוד מושך בו לגור. בנוסף, האזור נמצא גם קרוב לאטרקציות רבות, כולל גני המופת של דובאי, הממוקמים במרחק 10.7 קילומטרים מהנכס. כשנמצאים בגינה עם סוגים שונים של צמחים יפים, התושבים אינם יכולים אלא להיות מרותקים.
מרחק לאמצעים
- מרחק לעיר: 8 קילומטרים
- מרחק לחוף: 12.7 קילומטרים
- מרחק לשדה התעופה: 32 קילומטרים
- מרחק לאזור הקנייה: 500 מטרים
תכונות הדירות
בהתאם לנכסים בדמאק הילס, העיצוב של פרויקט הדירות הזה הוא ברמה גבוהה מאוד. אידיאלי למשפחות גדולות, הנכס בן שתי הקומות מציע דירות של שש או שבע חדרי שינה. לדירת השש חדרי שינה יש שבעה חדרי אמבטיה ושישה מרפסות בעוד שלדירת השבע חדרי שינה יש שבעה מכל. הפנים יש להן איכות כמעט מלכותית שמושכת את התושבים למרות הנוף המדהים של מגרש הגולף הירוק. השירותים כוללים קולנוע שבו התושבים יכולים לראות את הבלוקבסטר האחרון, ויש מתקני ספורט רבים כדי להבטיח שכולם יישארו בכושר ובריאים.
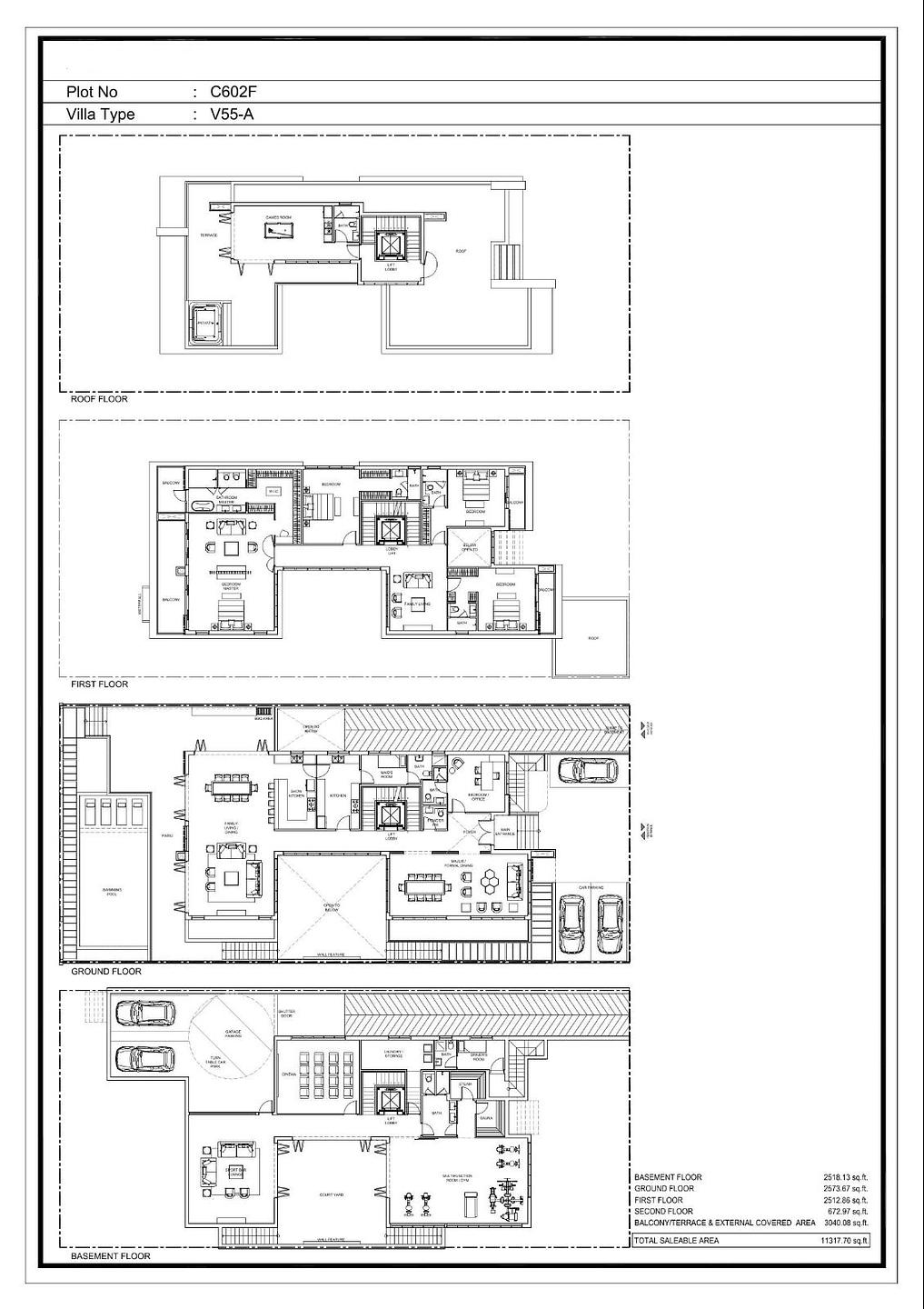
תוכניות קומה
לא יודע מאיפה להתחיל?
המומחה שלנו יצור איתך קשר כדי לסייע לך בבחירת הנדל"ן.



