Ref: 97118
(13) 图片
此房产已售出。
迪拜投资园独家四卧室联排别墅
房产详情 已验证
- 参考编号97118
- 目的出售
- 类型联排别墅
- 卧室4
- 浴室4
- 阳台4
- 面积258 平方米
- 结束日期30-12-2024
特点
私人停车 花园 游泳池 健身房 露台
距离
City Center: 10公里 Beach: 9公里 Airport: 21公里 Second Airport: 40公里 Shopping Mall: 100米 更多信息
该住宅区位于迪拜投资公园 (DIP)。 DIP 旨在成为该地区最环保的开发项目之一。它迅速确立了自己作为优质住宅、商业和工业区的地位。
城中城占地 2300 公顷,提供一系列基本设施和服务。居民可以从该地区的战略位置以及 DIP 的活动中获益。它位于杰贝阿里,毗邻阿勒马克图姆国际机场。此外,它与城市的主要商业中心紧密相连,可快速通往谢赫扎耶德路和阿联酋路等重要高速公路,并直接连接迪拜的 2020 年世博会/区。市中心与迪拜市中心和哈利法塔距离酒店有 28 分钟的车程。
到便利设施的距离
- 到中心的距离:10 公里
- 到海滩的距离:9 公里
- 到机场的距离:21 公里/40 公里
- 到商店的距离:100 m
迪拜独家四卧室联排别墅的特点
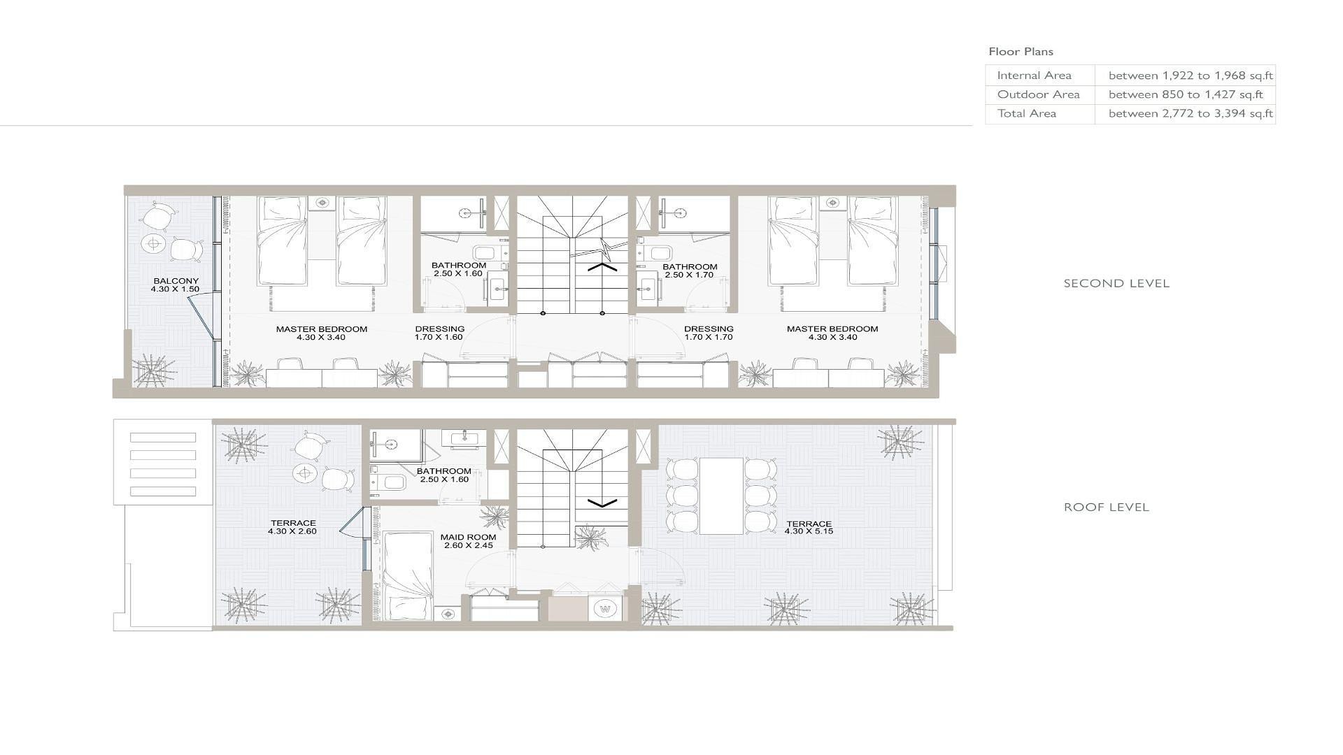
四卧室联排别墅/别墅拥有三层楼和一层地下室。每间豪华酒店均设有带花园的私人露台和带顶棚的停车场。
联排别墅还包括带浴室的佣人房、更衣室、几个大阳台、带双层玻璃的大落地窗、空调系统、每间卧室的连接浴室、大客厅、纤维光纤互联网和电视、全瓷砖浴室、卧室内的内置衣柜、镜子和橱柜,以及厨房用具。
封闭式社区设有多种休闲、运动和娱乐设施,包括两个带休闲空间的成人室外游泳池、两个儿童游泳池、健身房、景观公园、阴凉的休闲区和儿童游乐场。
平面图
不知道从哪里开始?
我们的专家将与您联系,协助您选择房产。
Phone
选择您偏好的通讯工具



