Bu mülk satılmıştır.
Alanya'nın Kargıcak semtinde olağanüstü daireler
Mülk Detayları Doğrulandı
- Referans No1975
- Amaçsatılık
- Tipdaire
- Yatak Odası1-3
- Banyo1-3
- Balkon1-2
- Boyut52-110 m²
- Bitiş Tarihi30-09-2024
- HavuzVar
- Deniz ManzarasıVar
Özellikler
deniz manzarası Doğa manzarası sauna Hamam tenis asansör havuz Kapalı havuz Açık Otopark
spor salonu Oyun alanı Sinema
Mesafeler
Şehir Merkezi: 1km Plaj: 1km Havalimanı: 130km İkinci Havalimanı: 24km Alışveriş Merkezi: 700m Daha Fazla Bilgi
Kargıcak, yoğun şehir merkezinin 16.6km doğusunda Alanya'nın bir ilçesidir. Buradaki hayat sakin ve insanlar, muz tarlaları ve çeşitli meyve ağaçları ile karakterize edilen denizin ve bol doğal peyzajın güzelliğini gerçekten fark etmek ve özümsemek için zaman ayırıyor. Plajlar temiz ve çoğunlukla küçük çakıl taşlıdır ve daireler sahilden 10 dakika uzaklıktadır. Büyük antik kent Syedra'nın kalıntılarına, D400 sahil yolundan batıya doğru 15 dakikalık bir araba yolculuğu ile ulaşılabilir. Aynı yol üzerinde ancak 28 km doğusunda Gazipaşa havalimanı bulunmaktadır.
Olanaklara uzaklık
- Şehre uzaklık: 2.3km
- Sahile uzaklık: 8km
- Havaalanına uzaklık: 28km
- Alışveriş bölgesine uzaklık: 700m
Daire Özellikleri
Her günü tatildeymiş gibi yaşamak büyük bir çoğunluk için ulaşılmaz bir hayalken, bu site sakinleri için gerçek olabilir. Bu apartman kompleksi, dört katlı dört bloktan oluşmakta olup, bireylerin, çiftlerin ve ailelerin ihtiyaçlarına uygun çeşitli daireler sunmaktadır. İki ve üç yatak odalı daireler dublekstir. Yaz aylarında, büyük açık havuzda serinlemediği zamanlarda, sakinler balkonlarında dinlenebilir ve Akdeniz'in veya çevredeki doğanın manzarasının keyfini çıkarabilirler. Serin günlerde Türk hamamı ve sauna olanaklarından yararlanabilir veya otel bünyesindeki sinemada en yeni filmleri izleyebilirler.
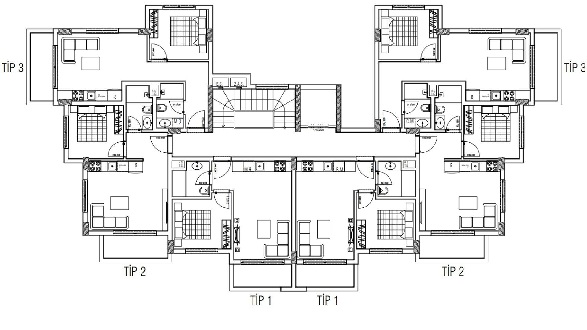
Kat Planları
Nereden başlayacağınızı bilmiyor musunuz?
Uzmanımız, gayrimenkul seçiminizde size yardımcı olmak için sizinle iletişime geçecektir.



