Bu mülk satılmıştır.
Alanya Kargıcak'ta bulunan ultra modern daireler
Mülk Detayları Doğrulandı
- Referans No1899
- Amaçsatılık
- Tipticaret
- Yatak Odası0-2
- Banyo1-2
- Balkon1-2
- Boyut31-88 m²
- Bitiş Tarihi14-07-2023
Özellikler
bahçe sauna buhar odası Jakuzi Jeneratör barbekü havuz spor salonu
Mesafeler
Şehir Merkezi: 190m Plaj: 250m Havalimanı: 139km İkinci Havalimanı: 27km Alışveriş Merkezi: 150m Daha Fazla Bilgi
Kargıcak, Alanya'nın 15 km doğusunda huzurlu bir ilçedir. Güney Akdeniz'in sakinliği ve doğal güzelliği içinde yaşamak isteyen ancak yine de hareketli bir şehre kolay erişimi olan herkes için mükemmel bir konum sunar. Bu bölgedeki plajlar temiz ve çakıllıdır ve mülk, muhteşem sahil şeridinden sadece birkaç dakika uzaklıktadır. Dim nehri ve Dim mağaraları bölgedeki doğal güzelliklerden ikisi. Çoğunlukla muz tarlaları ile çevrili yakındaki ana otoyolda (D400) düzenli otobüs seferleri vardır.
Olanaklara uzaklık
- Şehre uzaklık: 290m
- Sahile uzaklık: 250m
- Antalya (Uluslararası) havaalanına uzaklık: 139km
- Gazipaşa havaalanına uzaklık: 27km
- Alışveriş bölgesine uzaklık: 150m
Daire Özellikleri
Mülkiyet dört kattan oluşmaktadır; Bu alanda sadece alçak yapılaşmaya izin verilmektedir. Zemin kat birimleri perakende kullanım için ayrılmıştır. Daireler bir ve iki yatak odalı (dubleks), balkonlarından muhteşem kesintisiz manzaraya sahiptir. Yüksek kaliteli iç tasarım şık ve moderndir. Tesisler, sıcak bir yaz gününde plaja kısa mesafenin biraz fazla olduğu durumlarda bir açık yüzme havuzunu içerir.
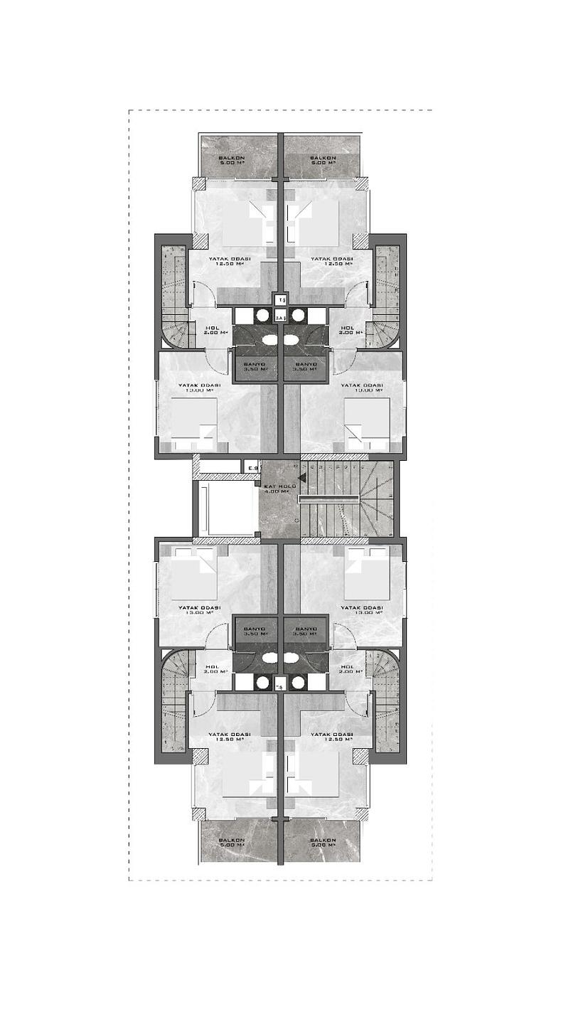
Kat Planları
Nereden başlayacağınızı bilmiyor musunuz?
Uzmanımız, gayrimenkul seçiminizde size yardımcı olmak için sizinle iletişime geçecektir.



