Denne eiendommen er solgt.
Ultramoderne leiligheter beliggende i Kargicak, Alanya
Eiendomsdetaljer Verifisert
- Ref.nr.1899
- Hensikttil salgs
- Typekommersielt
- Baderom0-2
- detail.bathroom1-2
- Balkong1-2
- Størrelse31-88 m²
- End Date14-07-2023
Funksjoner
hage Badstue dampbad Jacuzzi Generator grill basseng treningsstudio
Avstander
Bysentrum: 190m Strand: 250m Flyplass: 139km Andre flyplass: 27km Kjøpesenter: 150m Mer info
Kargıcak er et fredelig distrikt 15 km øst for Alanya. Det tilbyr den perfekte beliggenheten for alle som ønsker å bo i roen og den naturlige skjønnheten i det sørlige Middelhavet, men likevel ha lett tilgang til en pulserende by. Strendene i dette området er rene og småstein, og eiendommen ligger bare noen minutter unna den fantastiske kystlinjen. Dim-elven og Dim-grottene er to av naturattraksjonene som er i området. Regelmessige busstjenester går på den nærliggende hovedveien (D400), hovedsakelig omgitt av bananplantasjer.
Avstand til fasiliteter
- Avstand til byen: 290m
- Avstand til stranden: 250m
- Avstand til Antalya (internasjonal) flyplass: 139 km
- Avstand til Gazipaşa flyplass: 27 km
- Avstand til shoppingområde: 150m
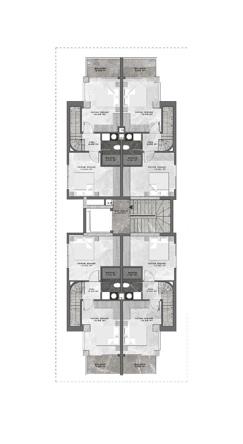
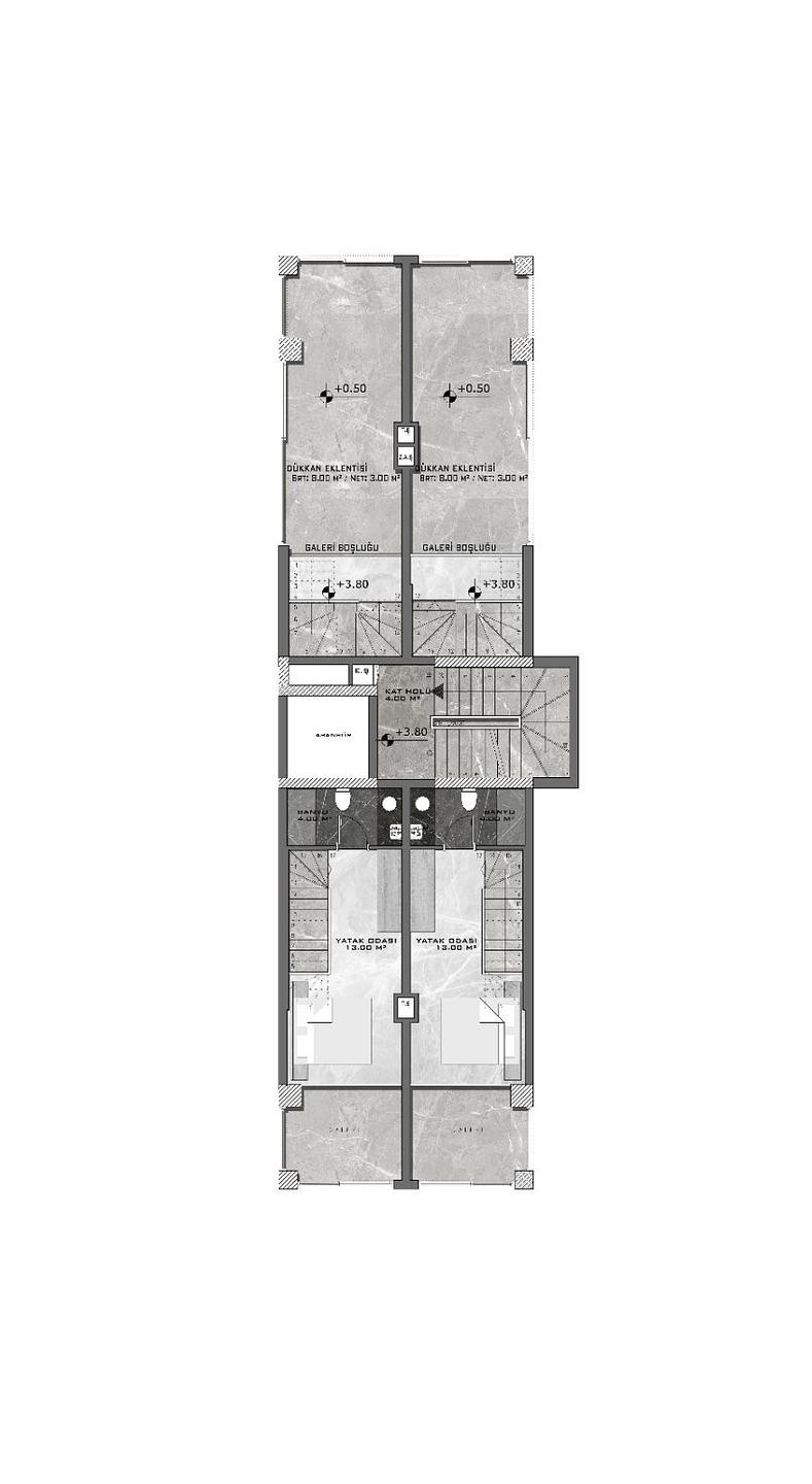
Leilighetsfunksjoner
Eiendommen består av fire etasjer; kun lavbygg er tillatt i dette området. Enhetene i første etasje er avsatt til detaljhandel. Leilighetene har ett og to soverom (duplex), med fantastisk uforstyrret utsikt fra balkongene. Interiørdesignet av høy kvalitet er elegant og moderne. Fasilitetene inkluderer et utendørsbasseng når den korte avstanden til stranden er litt for mye på en varm sommerdag.
Plantegninger
Vet du ikke hvor du skal begynne?
Vår ekspert vil kontakte deg for å hjelpe deg med valg av eiendom.



