...
Te koop: Commerciële ruimte in Kagithane, stadscentrum van Istanbul - Ideaal voor burgerschap
Vastgoeddetails Gecontroleerd
- Ref.nr.34050
- Doelte koop
- Typecommercieel
- Slaapkamer0-3
- badkamer1-2
- Balkon1
- Oppervlakte175-186 m²
- Eind datum30-12-2022
- ZwembadBeschikbaar
Prijslijst
Kenmerken
Nationaliteit Stadscentrum Stadsgezicht kinderzwembad binnenparking tuin sauna stoomkamer Turks bad
vergaderruimte Basketbal Veiligheid Kabel tv-satelliet Camera lift Dicht bij de bushalte zwembad Binnenzwembad sportschool Speeltuin Bioscoop
Afstanden
Stadscentrum: 10 m Strand: 6 km Luchthaven: 26 km Winkelcentrum: 100 m Meer informatie
De wijk Kagithane aan de Europese kant van Istanbul heeft een zeer gunstige ligging omdat het dicht bij belangrijke wijken zoals Beyoglu en Sisli ligt, op slechts 20 minuten van de snelweg E80 en er is een bushalte in de buurt voor degenen die de metro gebruiken. Deze eigenschap is een uitstekende kans voor individuen en gezinnen. Voor studenten is er een universiteit niet ver weg 'Istanbul Atlas University' In de buurt zijn er winkelcentra en ziekenhuizen, en voor voetbalfans, vooral die van Galatasaray FC, is het Nef-stadion van het team vlakbij slechts 10 minuten.Bovendien Turks staatsburgerschap wordt verkregen door eigendom.
Afstand tot voorzieningen
- Afstand van de stad: 3,3 km
- Afstand van het strand: 11,5 km
- Afstand vanaf Ataturk Airport (internationaal): 27 km
- Afstand van het commerciële gebied: 100m
Kenmerken van het appartement
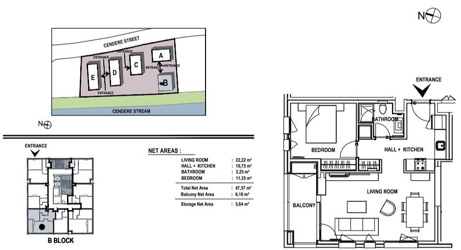
Het complex bestaat uit 5 blokken van verschillende groottes. De hoogste blokken zijn 12 verdiepingen hoog. De appartementen hebben 1, 2 of 3 slaapkamers en hun ultramoderne ontwerp komt vooral tot uiting in de keuken en de badkamer, die beide prachtig zijn. Elk appartement heeft een balkon om het uitzicht over de stad te bewonderen en te genieten van de charmante tuin die deel uitmaakt van het complex. De meest opvallende van de uitgebreide faciliteiten is de bioscoop. Het Turkse staatsburgerschap wordt verkregen door eigendom.
Plattegronden
Weet je niet waar te beginnen?
Een vertegenwoordiger zal u contacteren om u te helpen bij het kiezen van vastgoed.



