€100,000
Махмутлар, Аланьяда сатылатын жылжымайтын мүлік: бассейні мен спорт залы бар 1, 2, 3 жатын бөлмелері бар пәтерлер
Мүлік туралы мәліметтер
- Ref No1728
- Мақсатсатылуда
- ТүріПәтер
- Ұйықтайтын бөлме1-3
- Жуынатын бөлме1-3
- Балкон1-3
- Өлшемі48-135 м²
- Аяқталу күні31-07-2025
Ерекшеліктері
- балалар бассейні 
- сауна 
- Массаж бөлмесі 
- теннис 
- Қауіпсіздік 
- су сырғанағы 
- Қосалқы жуынушы 
- Кабельдік ТВ-спутник 
- Камера 
- лифт 
- бассейн 
- Жабық бассейн 
- Ашық Тұрақ 
- спортзал 
- Спас 
- Босаҕа залы 
- Ойын бөлмесі 
- Ойын алаңы 
Қашықтықтар
- Қала орталығы: 750м 
- Жағажай: 1км 
- Әуежай: 140км 
- Сауда орталығы: 600м 
- Қосымша ақпарат 
Бұл әдемі пәтерлер қазір Махмутларда сатылымда. Бұл қала Аланияның шығысында орналасқан және жанданып тұрған курорттық аймақ. Мұнда достық және қонақжайлық тұрғылықты көп мәдениетті халық бар. Бұл жерде тұратын қоныстанушылар тобы тұрақты түрде әлеуметтік іс-шаралар өткізеді, бұл жерге тұрақты орын ауыстыруға ниетті адамдар үшін өте қолайлы. Махмутларда кең ауқымды дүкендермен, сүйкімді барлармен және жоғары деңгейлі мейрамханалармен керемет инфрақұрылым бар. Қала заманауи, көптеген кешендер мен көпқабатты тұрғын үйлер бар. Ыстық жаз айларында туристер осында ағылып келеді, дегенмен мұнда жыл бойы жылы...маусымы ұзақ! Махмутлардағы жағажайлар жұмсақ құм мен түйіннен тұрады. Теңізге кіру тас және дөрекі болуы мүмкін жерлерде, кеңес толығымен тастарды айналып өтіп, теңізге тікелей апаратын күннет болатын дербес платформаларды жабдықтады.
Қызмет көрсету қашықтығы
- Жағажайға дейінгі қашықтық: 1 км
- Қалаға дейінгі қашықтық: 750 м
- Анталия халықаралық әуежайға дейінгі қашықтық: 140 км
- Газиапаша жергілікті әуежайына дейінгі қашықтық: 20 км
- Жергілікті дүкендер мен базарларға дейінгі қашықтық: 600 м
- Аланияға дейінгі қашықтық: 10 км
Пәтер мүмкіндіктері
Жаңадан салынған тұрғын кешені 6200 шаршы метрлік екі блокты пәтерлерден тұрады. Бұл тоғыз қабатты көпқабатты блок, 153 керемет безендірілген пәтерлер бар. Пәтерлер бір жатын бөлмеден үлкен екі және үш жатын бөлмелі пентхауздарға дейінгі кеңістіктен тұрады. Әрбір пәтер құрылыстың және аяқталудың еуропалық стандарттарына сәйкес аяқталады. Едендер ашық түсті керамикалық тақталармен жабылады, қабырғалар жуable бояумен боялады (кішкентай отбасы мүшелері бар отбасылар үшін пайдалы!) Және ылғалды климатқа мінсіз. Пәтерлер дыбыс және су өткізбейтін болады, телефон желілері және теледидар антенналары мен интернет кабельдері үшін розеткалар болады. Үлкен балкондар қолайлы сыртқы кранмен жабдықталған. Олар екі адамға арналған интимді кешкі асдан бастап отбасылық кештерге дейін өзіңіздің көңілді өткізетін орныңызды кеңейтуге мінсіз. Сыртқы кеңістікте әлеуметтік мүмкіндіктердің ғажайып жиынтығы бар. Бассейнде жүзгеннен кейін, қонақжайлық жерде күннеттен күнді ләззат алыңыз, айналада луше теңізіңдік өсімдіктермен қоршалған. СПА зонасына еніп, демалып массаж алыңыз, одан кейін сауна. Біздің кішкентайларыңыз туралы да ұмытпадық, оларға арнайы балалар бассейні, су слайдтары, ойын алаңдары және әртүрлі спорттық нысандар бар. Бұл жерде бәрі бар.
Бағалар тізімі
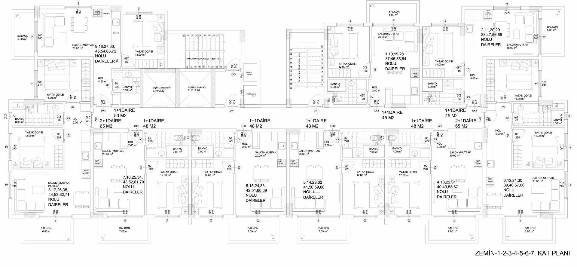
Қабат жоспарлары
Қайдан бастау керектігін білмейсіз бе?
Біздің сарапшымыз сізге мүлік таңдауға көмектесу үшін сізбен байланысады.



