تم بيع هذه العقار.
شقق أنيقة في مكان هادئ في دميرتاش ، ألانيا
تفاصيل العقار تم التحقق
- رقم المرجع2207
- الغايةللبيع
- كتابةشقة
- غرفة نوم1-2
- حمام 1-2
- شرفة1-2
- الحجم 55-115 م²
- تاريخ الانتهاء29-09-2024
المميزات
ساونا الشواء مصعد مسبح موقف سيارات خارجي صالة الألعاب الرياضية ملعب
المسافات
مركز المدينة: 23 كم شاطئ: 2 كم مطار: 140 كم المطار الثاني: 18 كم مركز تسوق: 900 م مزيد من المعلومات
إذا كانت فكرتك عن الجنة هي الهدوء والسكينة في الريف ويسهل الوصول إليها من الشاطئ ، فإن دميرتاش هو المكان المثالي. تقع على ساحل البحر الأبيض المتوسط على بعد 23.3 كم شرق ألانيا ، تشتهر منطقة دميرتاش بالهدوء والسكينة. سواء اختار الزائرون قضاء بعض الوقت على الشواطئ الرملية المنحدرة بلطف قبل الاستمتاع بالسباحة في مياه البحر الأبيض المتوسط الدافئة أو المشي في الداخل محاطة بالطبيعة الخضراء الجميلة مع جبال طوروس في المسافة ، فإن الجو المريح بلا منازع. ومع ذلك ، قلة من الناس يرغبون في أن يكونوا محرومين من فوائد الحياة الحديثة. يقع الطريق السريع D400 في مكان قريب ، مما يتيح للمقيمين الوصول بسهولة إلى جميع المناطق على طول طريقه ، بما في ذلك غازي باشا 24.3 كم شرقًا ، حيث يوجد مطار دولي.
المسافة إلى وسائل الراحة:
- المسافة من المدينة: 23.3 كيلو متر
- المسافة إلى الشاطئ: 2 كم
- المسافة إلى المطار: 18 كم
- المسافة إلى منطقة التسوق: 900 م
ميزات الشقة:
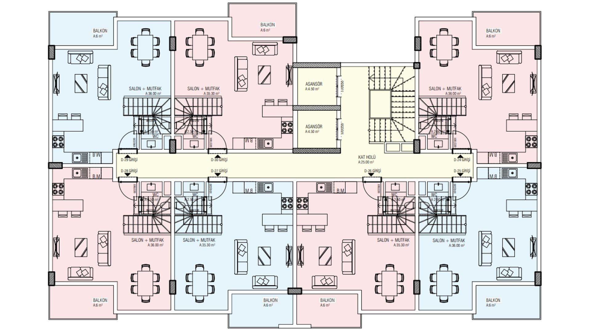
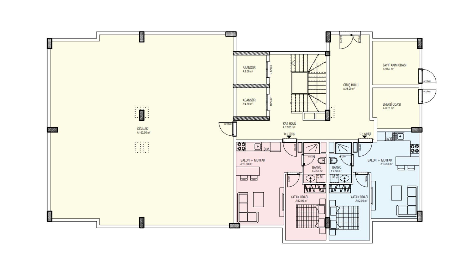
يتكون هذا المشروع المصمم بشكل جميل من مبنيين من ثلاثة طوابق داخل مجمع. يوجد مسبح خارجي أمام كل مبنى وموقف سيارات مفتوح في الخلف. يتم فصل الكتل بمساحة حديقة. مثالية كمساكن للعطلات أو للأزواج الراغبين في قضاء سنوات تقاعدهم في محيط شاعر. الشقة بغرفة نوم واحدة وحمام واحد وشرفة واحدة. الشقة المكونة من غرفتي نوم هي دوبلكس بها حمامان وشرفتان. تضم التصميمات الداخلية الفسيحة مخططًا حديثًا مفتوحًا. تشمل المرافق صالة رياضية وساونا للبالغين وملعبًا للأطفال.
مخططات الطابق
لا تعرف من أين تبدأ؟
سيتواصل معك خبيرنا لمساعدتك في اختيار العقار.



