تفاصيل العقار
تم التحقق

  • رقم المرجع97118
  • الغايةللبيع
  • كتابةمنزل توأمي
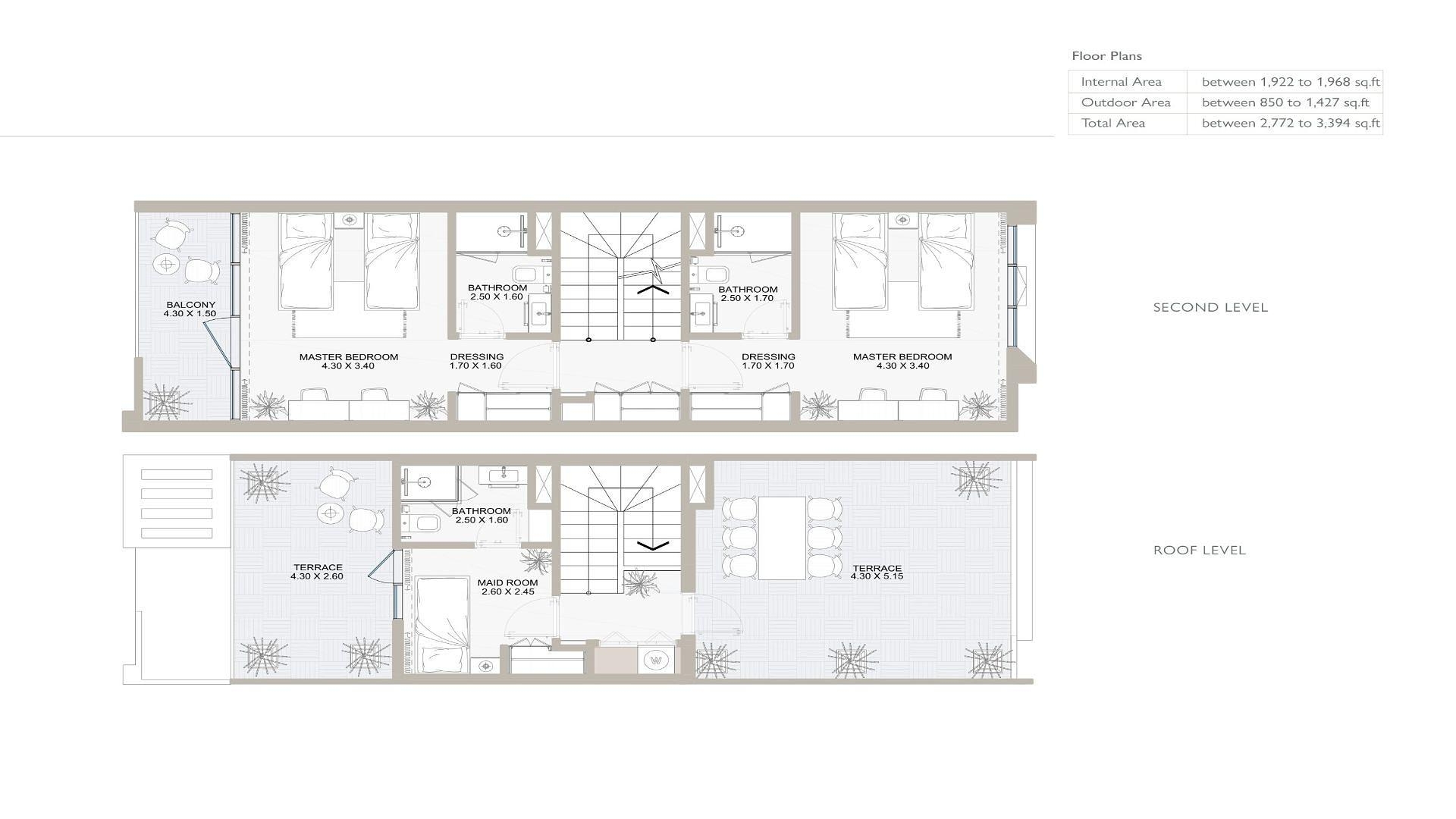
  • غرفة نوم4
  • حمام 4
  • شرفة4
  • الحجم 258 م²
  • تاريخ الانتهاء30-12-2024

المميزات

  • موقف خاص
  • حديقة
  • مسبح
  • صالة الألعاب الرياضية
  • شرفة

    المسافات

    • مركز المدينة: 10 كم
    • شاطئ: 9 كم
    • مطار: 21 كم
    • المطار الثاني: 40 كم
    • مركز تسوق: 100 م
    • مزيد من المعلومات

    يقع المجمع السكني في مجمع دبي للاستثمار. يهدف مجمع دبي للاستثمار إلى أن يكون أحد أكثر التطورات الصديقة للبيئة في المنطقة. سرعان ما رسخت مكانتها كموقع سكني وتجاري وصناعي متميز.

    تقدم المدينة داخل المدينة ، والتي تغطي 2.300 هكتار ، مجموعة من المرافق والخدمات الأساسية. يمكن للمقيمين الاستفادة من الموقع الاستراتيجي للمنطقة ، وكذلك الأنشطة في مجمع دبي للاستثمار. يقع في جبل علي بجوار مطار آل مكتوم الدولي. علاوة على ذلك ، فهو متصل جيدًا بالمراكز التجارية الرئيسية في المدينة ويوفر وصولاً سريعًا إلى الطرق السريعة الهامة مثل شارع الشيخ زايد وشارع الإمارات ، بالإضافة إلى اتصال مباشر بمعرض دبي / حي 2020. وسط المدينة مع وسط مدينة دبي وبرج خليفة على بعد 28 دقيقة بالسيارة.

    المسافة إلى وسائل الراحة

    • المسافة إلى المركز: 10 كم
    • المسافة إلى الشاطئ: 9 كم
    • المسافة إلى المطارات: 21 كم / 40 كم
    • المسافة إلى المحلات: 100 متر

    مميزات منازل التاون هاوس في دبي

    تتكون المنازل / الفلل المكونة من 4 غرف نوم من ثلاثة طوابق وطابق سفلي واحد. يحتوي كل عقار فاخر على تراس خاص به مع حديقة ومنطقة مغطاة لوقوف السيارات.

    كما تضم التاون هاوس غرفة خادمة بحمام ، وغرف ملابس ، وعدة شرفات كبيرة ، ونوافذ كبيرة ممتدة من الأرض حتى السقف بزجاج مزدوج ، ونظام تكييف ، وحمام داخلي في كل غرفة نوم ، وغرفة معيشة كبيرة ، وألياف. إنترنت بصري وتلفزيون وحمامات مبلطة بالكامل وخزائن مدمجة في غرف النوم ومرايا وخزائن ومجموعة مطبخ.

    يتميز المجتمع المسور بالعديد من وسائل الراحة للترفيه والرياضة والترفيه ، بما في ذلك مسبحين خارجيين للكبار مع مساحات ترفيهية ، ومسبحين للأطفال ، وصالة رياضية ، وحدائق ذات مناظر طبيعية ، ومناطق ترفيه مظللة ، وملعب للأطفال.

    لا تعرف من أين تبدأ؟

    سيتواصل معك خبيرنا لمساعدتك في اختيار العقار.

    Phone
    اختر تطبيق المراسلة المفضل لديك